SR514 FINISHING SCREEN
THE ANACONDA SR514 FINISHING SCREEN IS DESIGNED TO ALLOW FOR THE ULTIMATE AMOUNT OF FINES RETENTION.
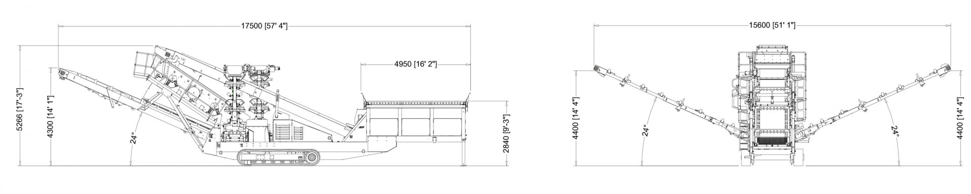
The SR514 is dynamic and economical to run and can screen / stockpile 4 products at up to 350TPH. Complete with a 14 x 5 screen box with the option of 2 or 3 deck, a 14ft feed hopper, main conveyor and either 3 or 4 hydraulically folding stockpiling conveyors. The screen is extremely easy to commission and can be running within 20 minutes of arrival on site.
The SR514 is the mid-sized screen in Anaconda’s finishing screen range and is established in the earth moving and material handling markets. This recognition has stemmed from the machines ability to suit fine screening operations such as sand and other fine material. This screener can also be fitted with a rinsing screen to allow users to introduce primary washing to their operation.
This versatile mobile screener can be tracked around sites for ease of use. The beauty about the SR514 is it takes into account all aspects of screening with a tipping grid to scalp away the bulky overs, the screen box for separation of up to four different sizes of end product and also built in conveyors that allow for constant stockpiling of product as the screen is fed.
FEATURES AND BENEFITS
- TIER 3 – CAT 4.4 OR JCB444 DIESELMAX– ROW
- TIER 4F – JCB444 ECOMAX IPU OR STAGE 5 CAT 3.6 – USA
- STAGE 5 – JCB444 DIESELMAX OR CAT 3.6 – EU
- HIGH ENERGY 4.33M X 1.52M (14’X5’) 2 OR 3 DECK SCREEN-BOX
- 3 PIECE SIDE TENSIONED TOP AND SECOND DECK
- 2 PIECE END TENSIONED BOTTOM DECK
- HOPPER CAPACITY OF 6M³ MAX VOLUME OF 8M³
- SCREEN-BOX ANGLE ADJUSTABLE 22-34º
- SCREEN-BOX WALKWAYS FOR EASE OF MAINTENANCE AND MESH CHANGE
- VARIABLE SPEED 4 PLY BELT FEEDER
- REVERSIBLE TRANSFER BELT ON 3 DECK SCREEN
- VARIABLE SPEED ON ALL STOCKPILE BELTS
OPTIONS
- 2 OR 3 DECK FULL RINSER SCREEN AND CATCH-BOX
- SCREEN DECKS – MESH, PIANO WIRE
- 2 DECK VIBRATING GRID
- TIPPING GRID
- RADIO REMOTE CONTROL
- OVERBAND MAGNET
- DUST COVERS
- ANTI – ROLL BACK
WEIGHT
- 2 DECK : 26,500KG – 2 DECK W/ LIVEHEAD 31,000 KG
- 3 DECK : 28,500 KG – 3 DECK W/ LIVEHEAD 33,000 KG






